T4 de 74m² avec garage résidence LES BOUQUETINS

169000€

toulouse 31200

Caractéristiques

4 pièces

3 chambres

Chauffage Électrique

Construit en 2002

Collectif

Ascenseur

Terrasse de 11 m²

DPE en cours

Description

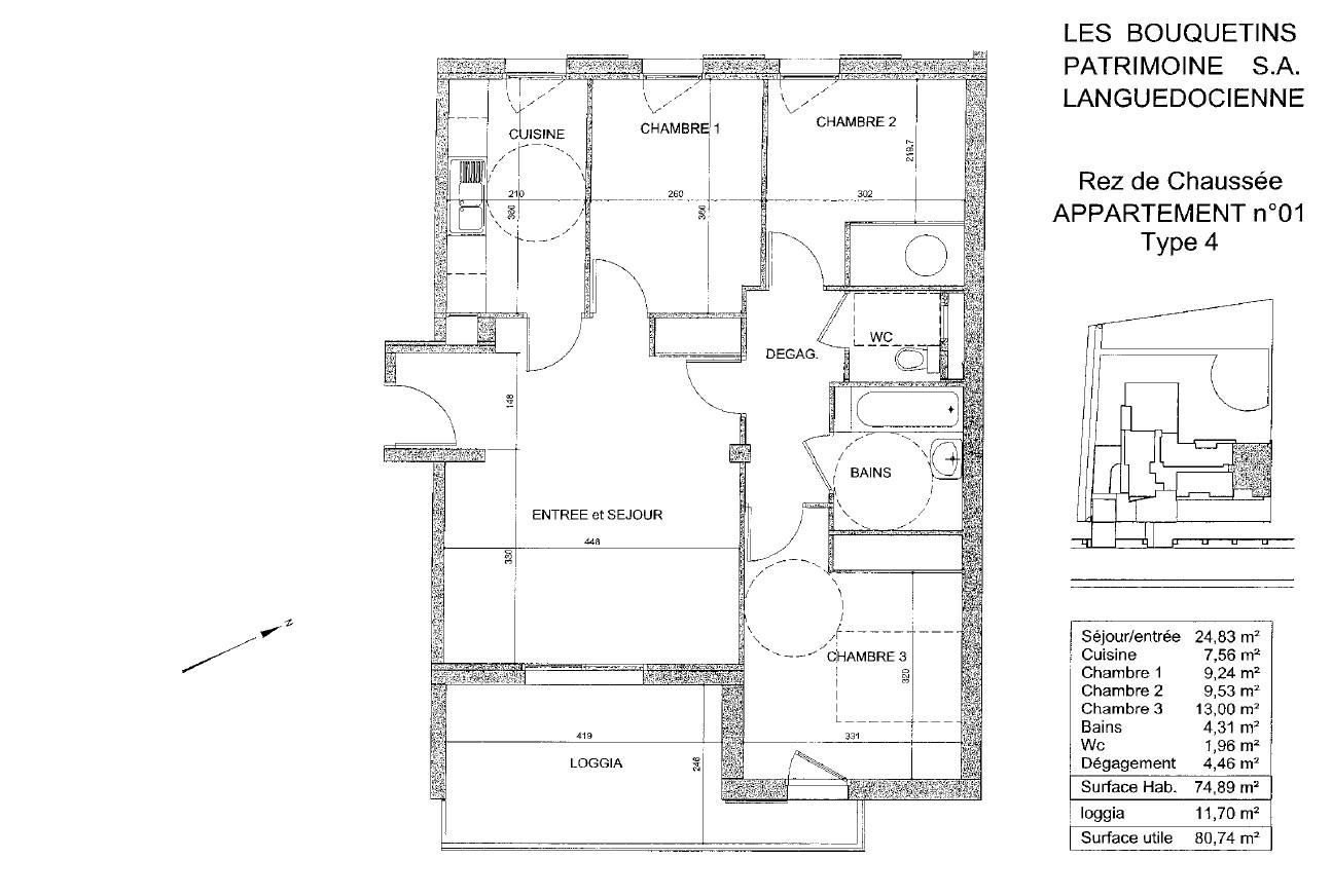
Accessible PMR venez vite découvrir ce T4 traversant de 74m² en rdc surélevé et bénéficiez de conditions exceptionnelles telles que l’absence de frais d’agence ainsi que des frais de notaire réduits à moins de 3% comme dans le neuf.

Situé 160 rue Edmond Rostand, entre les métro 3 Cocus et Borderouge accessibles à pied ce T4 se compose d’une cuisine séparée (à équiper), un grand séjour donnant sur une terrasse abritée de 11m², 3 chambres, salle de bain, wc séparé ainsi qu’un garage fermé situé dans le parking souterrain.

Résidence fermée et sécurisée accessible PMR (ascenseur, portes motorisées), chauffage électrique, double vitrage sol pvc

Charges de copropriété : 449€/trimestre.

Taxe foncière : 955€

Contact infos visites : Vincent AUBRY 06 84 83 99 77

Les informations sur les risques auxquels ce bien est exposé sont disponibles sur le site Géorisques : www.georisques.gouv.fr. DPE en cours de réactualisation.
« Offre sous réserve d’application des modalités définies par l’article 97 de la Loi ELAN du 23 novembre 2018, appuyé par le Décret 2019-1183 du 15 novembre 2019. Priorité locataires HLM et gardien d’immeuble jusqu’au 19/12/2025.

Résidence & quartier

Le bien se situe au 160 rue edmond rostand, 31200 toulouse

Prise de contact

Contactez votre conseiller dédié directement
ou utilisez le formulaire de contact.

Vincent Aubry

Conseiller PATRIMOINE SA

05 34 31 73 94
06 84 83 99 77

    Pour vous recontacter à propos de l’offre uniquement

    Ajouter un message

    18 autres biens sont disponibles à toulouse

    Voir toutes nos offres